Single-Storey Extension Hampshire: A Comprehensive Guide

5 minute read

If you're a homeowner in Hampshire looking to enhance your living space, a single-storey extension is a fantastic way to add value and functionality to your home. Whether you need extra space for a growing family, a new home office, or a larger kitchen, a well-designed extension can transform your home and improve your quality of life. In this guide, we’ll explore the key considerations for designing and building a single-storey extension, the importance of hiring an architectural designer, and the potential value it can add to your property. We'll also cover the crucial aspects of planning permission and permitted development rights.

The Benefits of a Single-Storey Extension

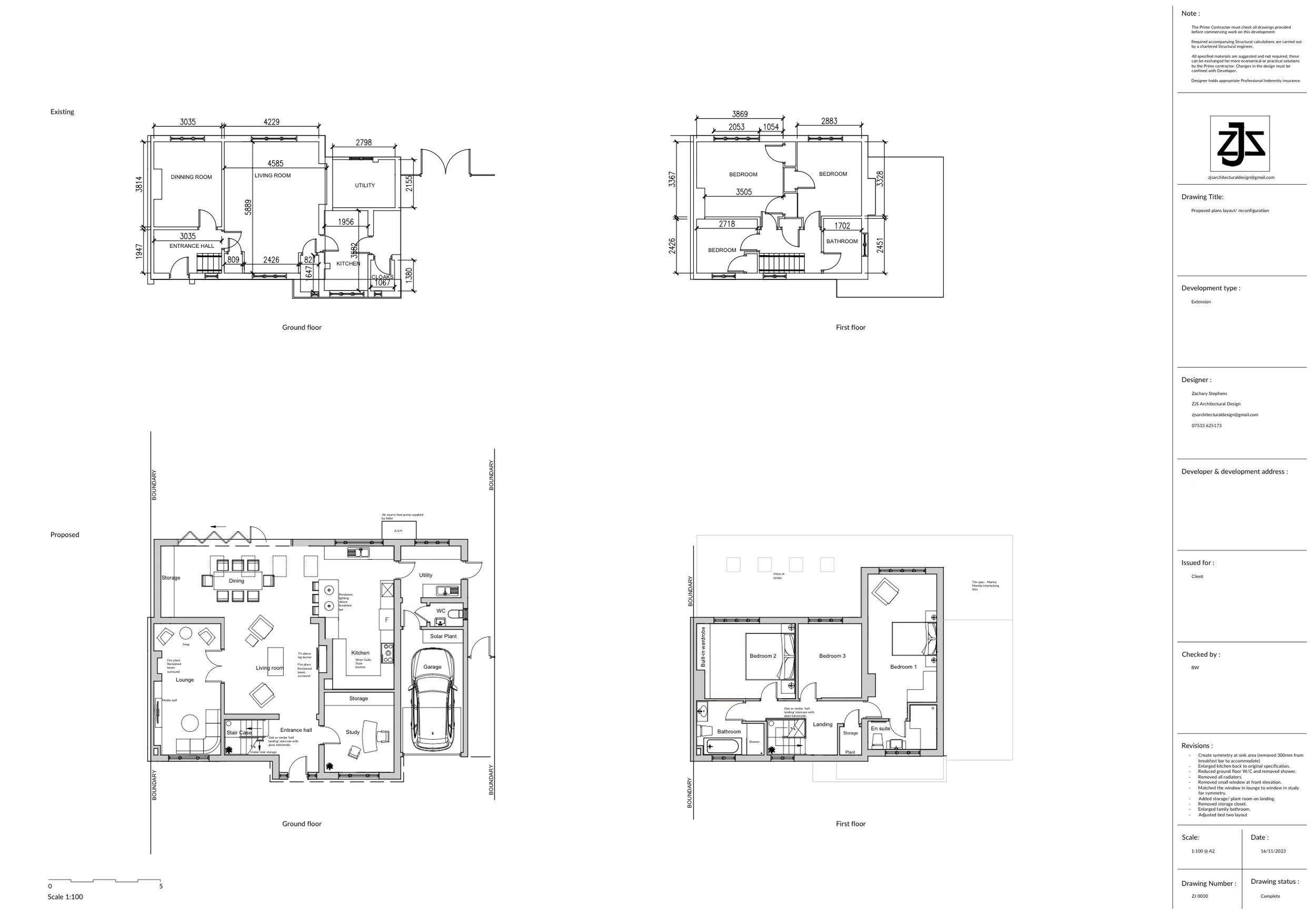
There has been a boom all over the UK for single-storey rear extensions. Firstly, it allows for a significant increase in living space without requiring extensive structural changes. With advances in construction technology, they are extremely energy efficient, sustainable, stylish, and adaptable for open-plan living. But if that’s not your thing, you can add sectioned-off rooms to the ground floor.

Added Value

One of the primary reasons homeowners opt for extensions is the added value to their property. According to a report by Nationwide, a well-executed extension can add up to 20% to the value of your home. In financial terms, if your property is valued at £300,000, this could mean an increase of up to £60,000.

Enhanced Living Space

Beyond financial benefits, a single-storey extension can vastly improve your living experience. Imagine a spacious new kitchen with room for entertaining, a light-filled family room opening onto the garden, or a serene home office separated from the hustle and bustle of daily life. These improvements not only enhance your day-to-day living but also make your home more attractive to potential buyers.

The Importance of an Architectural Designer

Engaging an architectural designer is crucial in ensuring that your extension not only meets your needs but also adheres to local and national building regulations and complements the existing structure of your home. Here’s why hiring a professional is essential:

Expertise and Vision

Architectural designers bring a wealth of expertise and a trained eye for detail to your project. They can help translate your ideas into practical designs, ensuring that every square foot of your extension is optimised for functionality and aesthetics.

Navigating Regulations

Navigating the maze of planning permissions and building regulations can be daunting. As architectural designers, we are well-versed in local Hampshire, Hart, Rushmore, and Waverley regulations and can handle the paperwork, reducing stress and ensuring compliance. This is particularly important in areas with conservation restrictions or unique building codes.

Cost Efficiency

While it might seem like an added expense, hiring an architectural designer can actually save you money in the long run. Their expertise can prevent costly mistakes, streamline the construction process, and ensure that your extension is built to last. According to the Royal Institute of British Architects (RIBA), a well-designed extension can lead to a 10% reduction in project costs through efficient space planning and use of materials.

Planning Permission and Permitted Development

“Unlocking Architectural Brilliance at Affordable Rates: Your Trusted Partner for Fair and Accessible Design Services.”

Something we are incredibly proud to announce! Check us out as the exclusive designer for Basingstoke and Deane, Waverley, Rushmoor and Hart Council’s ‘A homeowners guide to expanding your living space’. Links below:

 

Planning Permission

In the UK, planning permission is required for certain types of home extensions to ensure they comply with local policies and building regulations. However, not all extensions require full planning permission. The requirements can vary depending on the size, scale, and impact of the extension on the surrounding area. Generally, extensions that significantly alter the appearance of your home or affect your neighbours are more likely to need permission.

Permitted Development Rights

Permitted development rights allow homeowners to carry out certain building works without the need for planning permission. For single-storey extensions, these rights can be particularly beneficial. Under permitted development, you can extend your home by up to six meters for an attached house or eight meters for a detached house, subject to certain conditions and limitations. However, it’s crucial to check if your property falls within a designated area where permitted development rights may be more restricted, such as conservation areas or Areas of Outstanding Natural Beauty (AONB).

Key Considerations for Your Extension

When planning your single-storey extension, several key factors need to be considered to ensure the success of your project.

Design and Layout

The design and layout of your extension should seamlessly integrate with your existing home. Consider how the new space will be used and how it connects to the rest of your house. Open-plan layouts are popular for their spacious feel, but don’t overlook the importance of natural light and ventilation.

Budget and Financing

Setting a realistic budget is crucial. The cost of a single-storey extension in Hampshire can vary widely, but as a rough guide, you can expect to pay between £1,500 and £2,700 per square metre. This means a 20 square metre extension could cost between £25,000 and £65,000. Factor in additional costs such as planning permission, design fees, and finishing touches.

Choosing the Right Builder

Selecting a reputable builder with experience in single-storey extensions is vital. Look for builders with good reviews and a portfolio of completed projects. It’s also wise to get multiple quotes to ensure you’re getting a fair price. At ZJS Architectural Design, we help our clients choose right by providing them with ZJSAD’s ‘Beginners guide to construction: the construction toolbox’, a guide we put together with a few do’s and don’ts when selecting your contractors. We even include a directory of trusted trades/ professionals for you to engage with and receive quotes from.

Conclusion

Designing and building a single-storey extension in Hampshire is a rewarding project that can significantly enhance your home’s value and your living experience. By hiring an architectural designer, you ensure that your vision is brought to life with professional expertise and precision. From initial design to final construction, careful planning and execution are key to creating a space that meets your needs and stands the test of time.

Ready to transform your home? Contact us today to start your journey towards a beautiful new extension tailored to your lifestyle. Let’s build your dream space together!

Previous
Previous

The Great British Bungalow: Unleashing the Prime Housing Potential